Pentru a veni în sprijinul celor mai puțin inițiați vă descriu în cele ce urmează felul în care sunt realizate circuitele electrice de pe mașinile voastre,cu modul de distribuție și verificare.
Circuitul electric se compune din:
- sursa de energie (bateria sau alternatorul);
- traseu (cablajul aferent + panourile de distribuție și protecție);
- rezistența de sarcină ( consumatorii electrici).
Sistemul convențional standardizat de alimentare și distribuție electrică este cel de 12 Volți curent continuu cu minusul la caroserie. Toți consumatorii electrici sunt notați în specificații că funcționează la această tensiune electrică, în realitate tensiunea este mai mare și anume:
- o baterie bună și încărcată trebuie să aibă între 12,55 și 12,85 Volți ; dacă ar avea doar 12 V se consideră că este parțial descărcată și nu va fi capabilă să pornească motorul.
- în timpul funcționării motorului tensiunea generată de alternator este aplicată direct bateriei pentru încărcare și alimentare suplimentară cu energie electrică a sistemelor mașinii; totodată bateria are rol de filtrare a tensiunii generate de alternator. În acest caz tensiunea măsurată trebuie să fie de 13,80 Volți pentru încărcarea convențională iar pentru încărcarea în sistem smart-charge valoarea uzuală este de 14,4 Volți dar poate avea valori cuprinse între 13,5- 15,5 Volți, condiționat.
Firele de alimentare pentru legatură la masă au culoarea neagră iar cele pentru legătură la alimentare, pol pozitiv, au culoare roșie.
Distribuția curentului electric se face ținând cont de nevoia de energie a fiecărui consumator. Cu cât curentul printr-un circuit va fi mai mare cu atât firele din respectivul circuit vor fi mai groase, siguranțele au o valoare de rupere exprimată în Amperi mai mare și releele vor fi mai mari.
Toți consumatorii au circuitele de alimentare protejate prin siguranțe. Singurul consumator care nu are circuitul de alimentare protejat de siguranță este cel mai mare consumator electric de pe un autovehicul și anume electromotorul. Toți ceilalți consumatori, chiar dacă au un consum foarte mare (parbrizul încălzit, bujiile incandescente, sistemul de încălzire auxiliară PTC, ventilatoarele, etc.) au protecții cu ajutorul siguranțelor! Acest lucru este foarte util în verificarea și depistarea unor scurtcircuite sau întreruperi ale
circuitelor electrice.
Circuitele electrice se clasifică după mai multe criterii, cel mai important dintre ele din punct de vedere al siguranței în exploatare și al tehnicii de verificare este dat de poziția contactului mașinii și anume "prezența curentului electric în circuit".
Poziția contacului duce la închiderea sau deschiderea circuitelor prin contactul intern și prin intermediul releelor. Astfel se disting 4 poziții ale contactului, respectiv 4 tipuri de circuite prin care va circula un curent electric condiționat de poziție-contact.
Contactul în poziția "O" asigură alimentarea de staționare. Sunt alimentate module cum ar fi PCM, GEM, BCM, IC, închiderea centralizată, ceasul, sistemul audio, sistemul antifurt. Pentru a se asigura un consum total cât mai scăzut unele din aceste module sunt alimentate doar parțial, elocvent în acest caz este sistemul audio. De asemenea unele circuite pot fi activate chiar în staționare, cum ar fi sistemul de iluminare; pentru protecție aceste circuite sunt alimentate printr-un circuit suplimentar "battery saver" care va decupla de la baterie aceste circuite, după un timp prestabilit.
Contactul în poziția "ACC" asigură alimentarea de staționare-activă. Se asigură alimentarea integrală a sistemului audio.
Contactul în poziția "RUN" este contactul propriu-zis și asigură alimentarea generală a tuturor sistemelor.
Contactul în poziția "START" are rolul unic de a energiza releul starter.
Cutiile cu siguranțe și relee au două sau mai multe bare de distribuție de care sunt atașate siguranțe pentru alimentarea fiecărui circuit în parte, conform desenului următor:
După această schemă avem următoarele:
-cutia din compartimentul motor are 3 bare de distribuție (A,B,C), bateria alimentează direct bara A, bara C este alimentată din bara A prin siguranța F7, bara B se alimentează tot din bara A doar dacă se atrage releul K1.
-siguranțele F1,F3,F4,F8,F9 și F10 alimentează circuite direct din cutia din compartimentul motor.
-bara F din cutia cu siguranțe și relee din habitaclu se alimentează din cutia din compartimentul motor prin siguranța F2.
-bara D se alimentează doar dacă se atrage releul K2 , prin intermediul siguranței F6.
-bara E se alimentează din bara A prin siguranța F5; tot prin siguranța F5 se alimentează și bara G cu condiția ca comutatorul
X să fie pe poziția "închis".
-siguranța F11 asigură alimentare doar dacă se atrag releele K4 și K5.
-siguranța F17 asigură alimentare doar dacă se atrage releul K3.
Din cele prezentate putem deduce următoarele:
-siguranțele F8,F9, F10,F19 și F18 asigură alimentare permanentă , neputând fi întreruptă!
-se pot cupla sau decupla mai multe circuite deodată dacă sunt alimentate de la aceeași bară de distribuție.
-mai multe circuite deodată pot să nu funcționeze din cauza unei singure siguranțe arse, aparent fără nici o legătură sau a unui singur releu!
-dacă există curent pe o bară de distribuție atunci trebuie să fie pe toate siguranțele care sunt branșate direct la bara respectivă, pe ambele capete ale siguranțelor !

- sig auto.png (85.38 KiB) Vizualizat de 13404 ori
Exemplu practic:
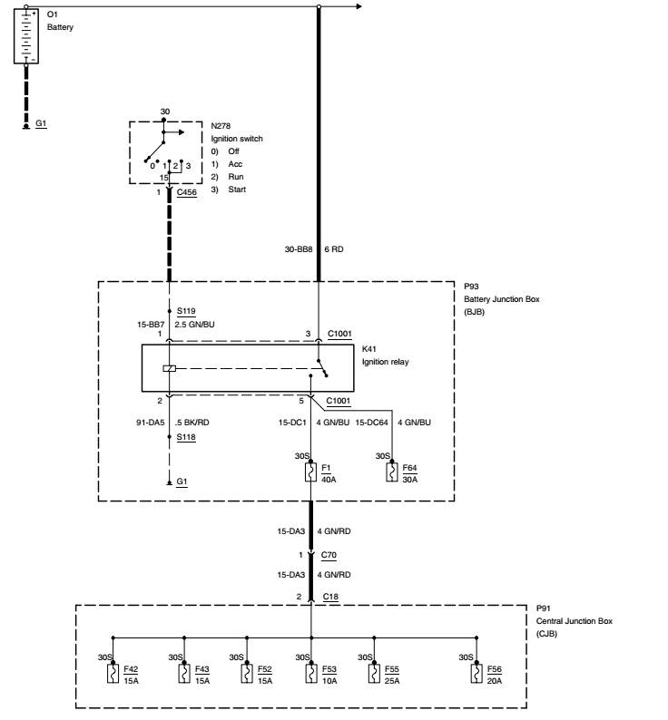
Ce înțelegem din această schemă a unui Focus 1 :
-bateria asigură tensiune permanentă printr-un fir roșu la pinul 3 al releului K41;
-releul K41 (ignition relay- releul aprinderii) din cutia din compartimentul motor se atrage doar la punerea contactului (ignition switch) iar prin contactul său se alimentează siguranțele F1 și F64 din aceeași cutie;
-printr-un fir verde/roșu din siguranța F1 se alimentează bara de distribuție din cutia cu sigurante din interior și care alimentează simultan siguranțele F42,F43,F52,F53,F55 și F56.
Circuitele alimentate:
-F42 - lămpile stop
-F43 - ștergătorul lunetei
-F52 - încălzire scaun pasager
-F53 - selectorul transmisiei
-F55 - geamurile electrice
-F56 - ștergătoare parbriz
Ce deducții logice putem avea din asta?
Nu se poate ridica sau coborî geamul elecric doar dacă se pune contactul !
Nu putem verifica dacă ard becurile pentru stop doar dacă se pune contactul !
La scoaterea cheii din contact sau punerea lui pe pozitia O sau ACC toate aceste circuite nu vor mai funcționa.
Un sfat practic și extrem de util în evitarea avariilor și chiar a incendiilor: inspectați periodic și după parcurgerea unui drum mai lung releele din cutiile de distribuție; puneți mâna pe ele și verificați să nu fie fierbinți ! Se pot încălzi excesiv fapt ce duce la topirea soclului lor, a izolației firelor și chiar la incediu ! De asemenea, dacă s-a facut vreun scurtcircuit verificați și curățați contactul de lucru al releului din circuitul respectiv (dacă există); aceste contacte se perlează, circuitul va funcționa necorespunzător și pot cauza mari probleme..
Înțelegerea modalității prin care se asigură alimentarea cu curent electric a sistemelor unui automobil vă ajută mult în rezolvarea multor probleme de către voi singuri, vă scutește de timp pierdut și chiar de cheltuieli inutile.
Să vă fie de folos !