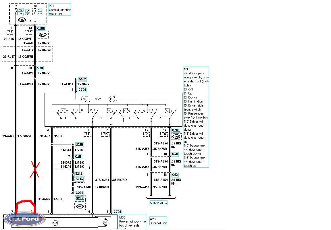
Analizand schema mai amanuntit, am observat ca sigurantele F60 (geamuri fata) si F61 (geamuri spate) sunt deja pe plus permanent. Pt ca sa deschida geamul fara cheie ar trebui ca siguranta F91 sa fie pe plus permanent - dar atunci vor sta aprinse permanent ledurile de la butoane

. Ce facem ? Eu am gasit 2 variante:
1. Fie taiem firul care vine de la F91 (C50) la portul 2 al modulului M80 (Power window motor) si il conectam direct la portul 7 acolo unde vine deja + permanent. Atentie metoda trebuie aplicata pt fiecare usa in parte si asta presupune dat tapiterie jos , dat burete izolator jos - pt acces la modulul M80.
2. Fie conectam siguranta F91 la + permanent. Iar pt fiecare geam in parte taiem firul care vine de la F91 (C50)
la portul 13 al modulului N300 ( butoane ) si il conectam la un plus pe cheie sau poate la un plus de pozitie ( dupa preferinta fiecaruia ) - dar trebuie gasit un astfel de fir de plus in usa - daca nu trebuie tras fir si e mai complicat.
In ambele cazuri butonul de la sofer de acces geamuri spate este functional doar pe cheie. Adica daca ai scos cheia si ai accesul oprit la geamurile din spate - atunci nu se vor putea deschide geamurile din spate fara cheie. Trebuie bagat cheia comutat butonul de acces .... si atunci vor merge.
In mare cam acestea sunt operatiile care trebuiesc facute. Am sa revin cu scheme pt fiecare usa in parte.
Scuze de offtopic dar nu exista un topic dedicat pt aceasta . Il rugam pe Titocus sa creeze el unul.
- Fişiere ataşate
-

-
