Pentru ca se cere, pentru ca vedem, pentru ca ne place, pentru ca vrem !!!!
02 Apr 2011, 10:57
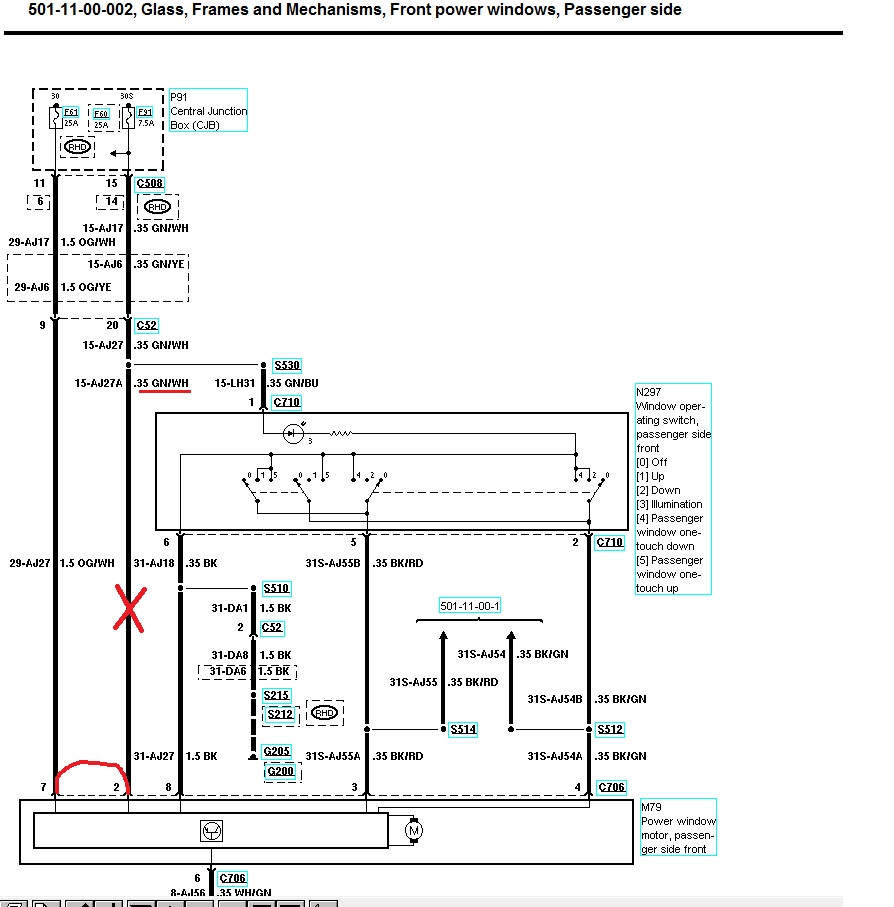
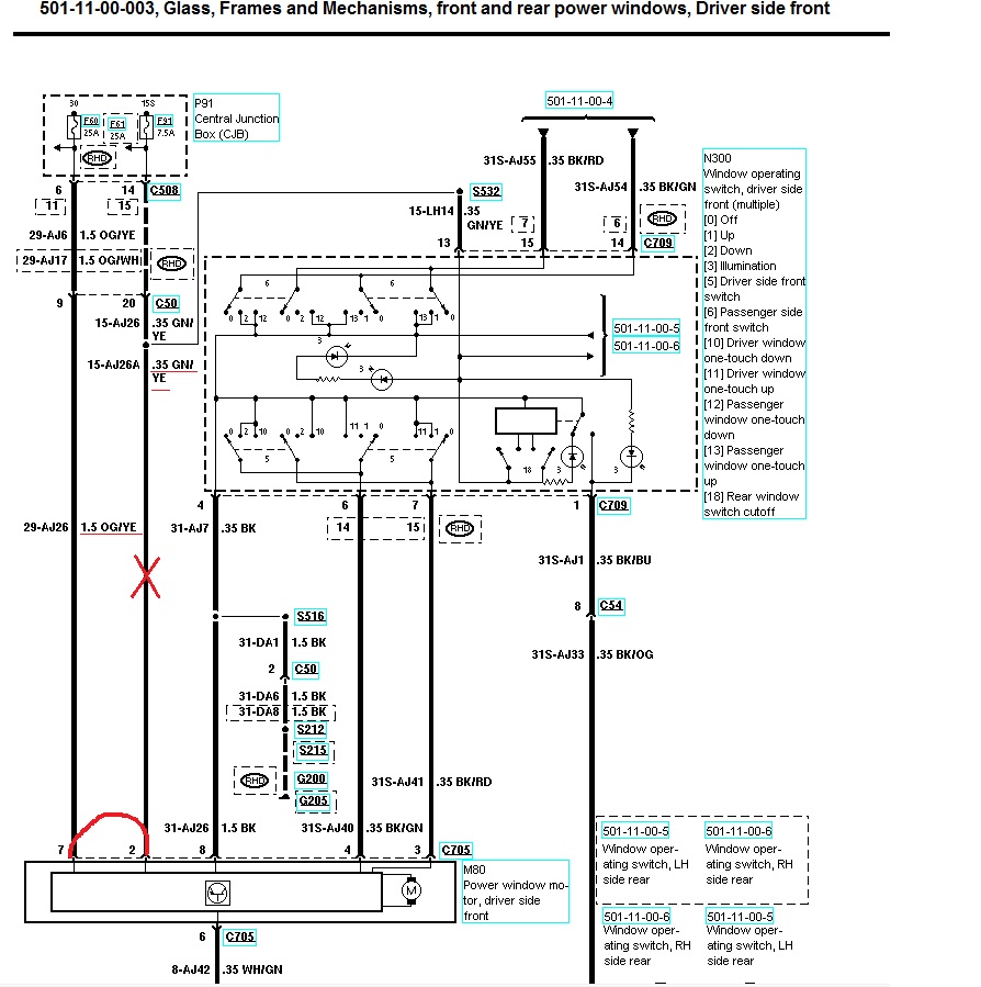
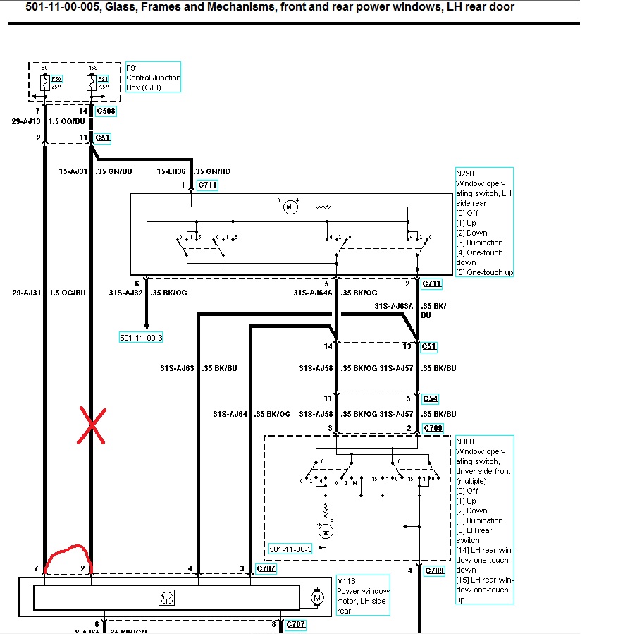
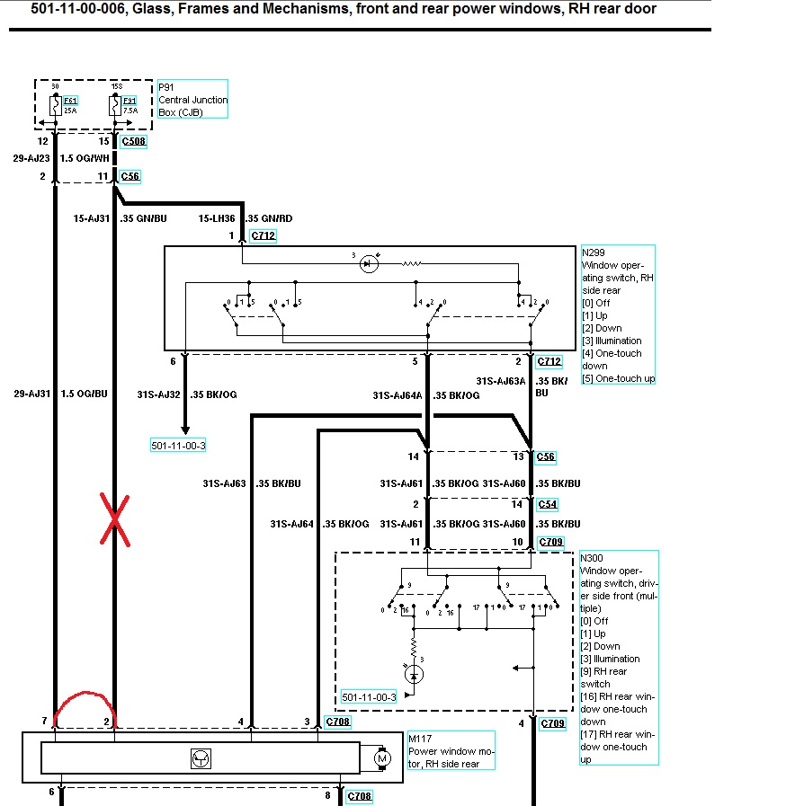
Am pus mai jos schemele de principiu cu modificarile care trebuiesc facute.
Nu m-am apucat inca de treaba dar intentionez sa fac asta si apoi o sa pun si niste poze.
Butonul de acces (cel de la sofer) pentru geamurile din spate va merge tot pe cheie. E ceva mai complicat acolo - daca vrem sa fie fara cheie - o sa mai dezvoltam pe parcurs.
Daca aveti idei pe tema le astept cu placere sa le dezbatem.
Sper ca o sa va fie util.
- Fişiere ataşate
-

- Trapa
-

- Geam spate stanga
-

- Geam spate dreapta
-

- Geamul fata pasager
-

- Geamul de la sofer
02 Apr 2011, 17:07
care este modul de functionare al geamurilor pe care doresti sa il implementezi?
02 Apr 2011, 19:27
Geamurile vor functiona fara contact - cheie
12 Apr 2011, 18:58
Am incercat astazi sa fac manevra la geamul dreapta spate. Nu a iesit dupa asteptarile mele.
Adica geamul se deschide fara contact cheie doar de la sofer, nu si de la usa spate , din cauza ca butonul de la sofer care da acces
pentru geamurile din spate functioneaza doar pe plus de la contact. Si in plus am observat ca nu mai functioneaza functia care deschide sau inchide geamurile de la telecomanda (adica se deschideau/ inchideau geamurile mai putin geamul dreapta spate ).
In concluzie nu recomand sa faceti asta. Le lasati asa cum sunt ca merg bine - doar pe contact cheie.
Asta este - nu se poate
12 Apr 2011, 19:20
Sincer sa fiu, cred ca cel mai mult folosite dupa ce opresc motorul, ar fi geamurile din fata. Alea din spate.... mai rar.
Iarridicarea sau coborarea geamurilor din telecomanda o folosesc foarte rar, doar daca vreau sa impresionez pe cineva. Mai ales ca raza de lucru a telecomenzii este destul de mica (este si un TSB cu problema asta).
Eu zic sa nu abandonezi proiectul. Cel putin daca s-ar rezolva problema becurilor butoanelor, ar fi o solutie pe care multa lume ar folosi-o.
21 Apr 2011, 09:48
Pai daca tu vrei doar geamurile din fata, poti sa-i dai bataie , ti-am pus schemele
pt geamurile din fata si ce trebuie sa faci.
Intre timp mi-a venit o alta idee: sa pun undeva un buton care sa comute functionarea geamurilor pe plus
permanent atunci cand apesi pe el, si sa se dezactiveze atunci cand pui contactul.
Powered by phpBB © phpBB Group.
phpBB Mobile / SEO by Artodia.